
“在時尚界流傳著這么一句話:撞色,讓一切成為可能。”
Contrasting colors make everything possible.

Contrasting colors
色彩之間的相互碰撞,呈現強烈的視覺沖擊力
讓人眼前一亮的同時,也是個性的表達
更多了一份時尚感和高級感
Louis Vuitton、Hermès、Versace
時尚界的潮流風向,玩轉撞色設計
此次案例中設計師
以現代主義線條與先鋒時尚的色彩構造
以色彩激起更原始的感知
詮釋生活個性化的無限想象
不拘格調,SK帶您玩轉 「撞色」
Play with "contrast colors"


映入眼簾的是橙棕色墻面
光影變幻間
開啟一段富有趣味的探索之旅
不同色塊的多元組合,井然有序而充滿驚喜


以色彩留住時間的另一種存在方式
將形狀、顏色和光進行呈現
既是當下的情緒表達也連載了共情感
重構自由主張,令空間彰顯出藝術性的魅力


地面通鋪SK 600x1200mm新古典灰
低調高級灰,邂逅橙棕色調
營造一個簡約優雅的摩登空間
更多了一份時尚感和高級感



各種材質相互碰撞,時尚之余還稍顯高級氣質
功能區劃分,精妙搭配令人著迷
聽著音樂,來一杯香濃的咖啡,肆意享受


拱形門的獨特設計
用曲線和弧度弱化棱角的尖銳
柔化空間的視覺感受
美化空間設計,有顏值更有內涵


衛生間極富藝術調性
莫奈花園的綠色大膽撞色故宮紅
有著非常濃郁的視覺沖擊
營造了豐富的層次感,賦予生活新尚氣質



向內探望,步入主人房浴室
SK瓷磚 600x1200mm雅柏灰
墻地一體化的應用,讓空間整體渾然一體
簡單而又純粹,舒適而又恬靜
以色彩激起更原始的感知
去洞察生活,讓記憶多維度地存在
打破設計的邊界,詮釋生活個性化無限想象
空間設計新靈感,你get到了嗎?
項目信息 | INFORMATION:
項目類型:住宅公寓
項目地點:瀘州市
建筑面積:120㎡
主案設計:梁峰
設計機構:芥子空間設計工作室
項目案例:金堂獎入圍作品


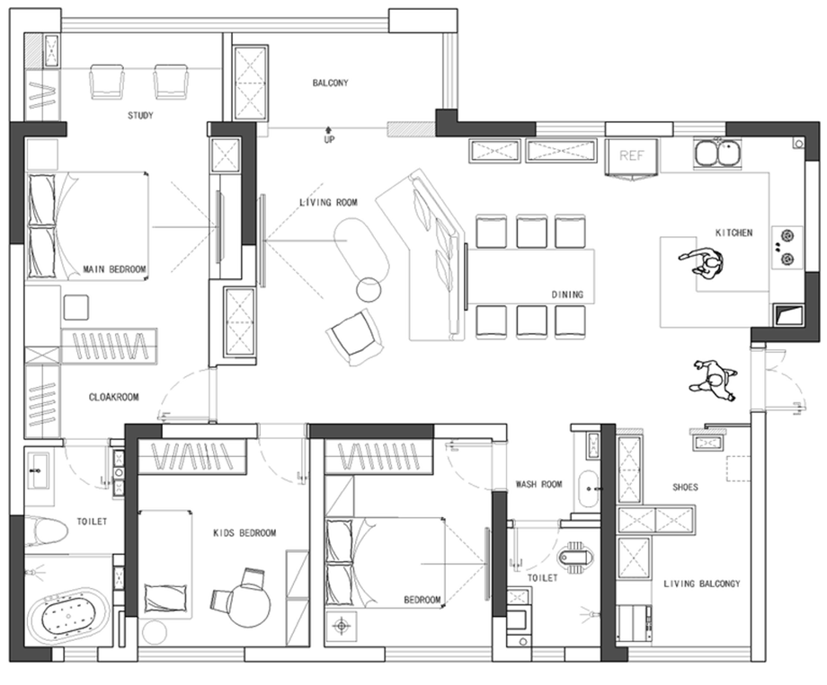
·項目設計平面圖
項目用磚 | CERAMICS:
新古典灰 GRAY ARMANI

600x1200x10mm 一石6面 柔光面
SK原創,素雅格調,高雅脫俗
雅柏灰 ALBA GRAY

600x1200x10mm 一石12面 柔光面
SK原創,自然寫意,獨具韻味