“當所有匆忙都隨日色落幕,你才與自己相見。”

Modern Elegance
繁華的都市,熱鬧的人潮,快節奏的生活,忙碌的工作,似乎忘卻生活的本真,慢下來,發現生活當中的美,讓浮躁的內心平靜下來,詩意地棲居,享受愜意舒適。
設計理念
Design ideas

本案位于廣州珠江岸邊,視野開拓,江景優美,清風徐來,站在一覽無余的落地玻璃窗邊,讓人有一種“一覽眾山小”的獨特感受。
設計師將整體風格定調簡約雅致,色調柔和而不張揚,構建一處靜謐舒適的居所,沒有塵世的紛擾,讓人可以放慢腳步,享受愜意舒適。
客廳
living room


客廳以高級灰勾勒空間整體基調,鋪設SK 800x1800mm默灰,低調高雅,自然大氣,與簡約質感的軟裝相互映襯。利用大面積落地玻璃窗直接擁抱珠江美景與光線,更顯明朗曉暢,升華生活的空間的格調。

電視背景墻SK 1200x2700mm雪花白
雪花般的白與自然隨性的紋理,渾然天成,一片到頂,視覺上達到無限延伸效果,讓客廳整體空間,更加開闊富有格調。


設計師的細節巧思之處,以“相思豆”植物點綴客廳,花語意為深深的相思之情,寄托人們對美好生活的向往。


更巧思之處便是黑白相間的旋轉樓梯,為復式公寓起到了極大的裝飾作用,提高了空間利用率,又時尚美觀。
餐廳
Restaurant


接連的是開放式的餐廳,營造寬敞舒適而大方的空間感,巖板的餐桌搭配磨砂皮質的座椅,簡約舒適與優雅主義的結合,品味質感生活,盡享美味佳肴之樂趣。
廚房
Kitchen

現代簡約的廚房設計,墻面鋪設SK 800x1800mm雪花白,細膩的紋路氤氳出優雅藝術意境,于細節處流露出精致之美。
主臥&浴室
Dedroom

主臥營造平和靜謐的獨立空間,利用極佳的地理優勢,大面積落地窗,視野開闊,將珠江風景將收眼底。
床頭上的SK 800x1800mm瑪瑙玉鈷藍,不規則的切割拼接,時尚又個性。

衛浴空間SK 600x1200mm星白,晶瑩的光感,流星劃過的肌理感,自然大氣,將空間變得寬敞舒適,讓人身心放松,享受悠閑的洗漱時光。
- ART -

藝術設計的獨特語言,講述著生活的獨特色彩,描繪這個世界的本質與純粹,純真與精致優雅的不期而遇。
SK瓷磚為你,構建別樣的品味空間
BORN FOR HIGH-END DESIGN
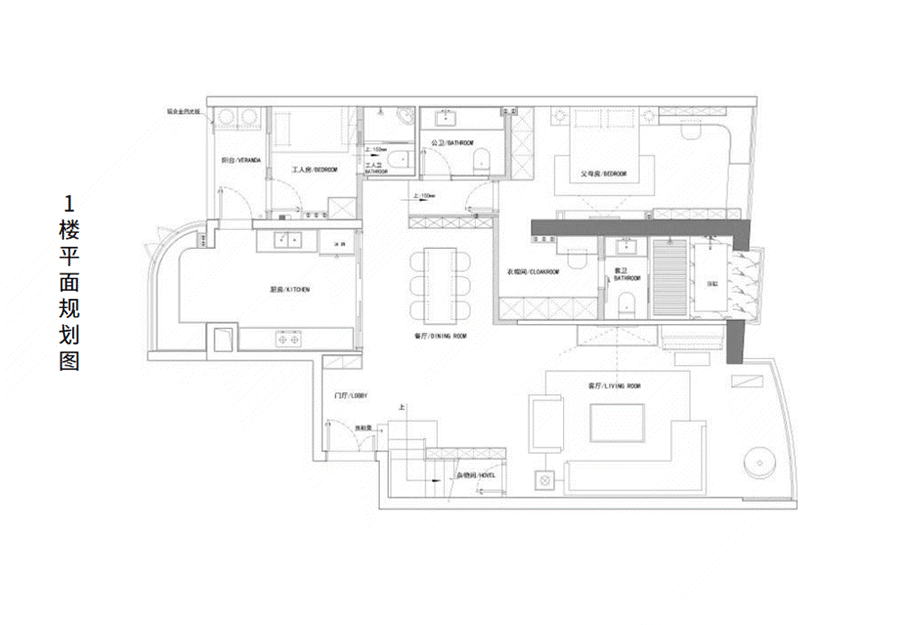
平 面 布 置 圖 | P L A N

項目信息 | INFORMATION
主案設計丨帥伯尤(設計總監)
項目名稱丨《空間•旋律》
項目面積丨280㎡
風格傾向丨現代
案例地址丨中信君庭
項目用磚 | CERAMICS
雪花白 STATUARIO BIANCO

1200x2700x6mm,一石4面,亮光面
意大利原創,簡潔時尚,高貴優雅
默灰 INKY GRAY (定制)

800x1800x10mm,一石9面,柔光面
SK原創,質樸自然,低調沉穩
瑪瑙玉鈷藍 COBALT BLUE ONYX

800x1800x10mm,一石9面,亮光面
意大利原創,潤澤亮麗,自然通透
星白 STAR WHITE

600x1200x10mm,一石9面,亮光面
意大利原創,簡潔明快,自然優美